- Dit onderwerp bevat 13 reacties, 4 deelnemers, en is laatst geüpdatet op 4 jaren geleden door
LoesE.
-
AuteurBerichten
-
11 maart 2022 om 08:40 #3521
TheoZ
DeelnemerBuitengasthuis 1824 scan 7
….. K: Z
11 maart 2022 om 10:05 #3522willvlas
Moderator11 maart 2022 om 13:29 #3524willvlas
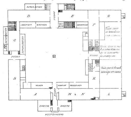
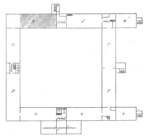
ModeratorDe indeling van het Buitengasthuis was als volgt:
Begane grond:
Vrouwenzaal
Mannenzaal en Mannenverband
Mannen-Zenuwzieken
Mannen-krankzinnigen
Vrouwen-krankzinnigen
Vrouwen-zenuwziekenZolder:
Kinderzaal
Vrouwenverband, Huid- en geslachtszieken
Vrouwenverband en Gynaecologie
Mannen huid- en geslachtsziekenIn het register komen de volgende zalen voor:
1ste Zolder
2e Zolder
Klein Huis
Mannen Klein Huis (Syphilitische mannen)
Mannen KZ (Krankzinnigen)
Mannen VB (Verband)
Mannen VL (Venuslijders)
Man Vloer (Mannenzaal)
Mannen Zieken
Vrouwen KZ (Krankzinnigen)
Vrouwen VB (Verband)
Vrouwen VL (Venuslijders)
Vrouwen Zieken
12 maart 2022 om 16:13 #3525TheoZ
DeelnemerHartelijk dank!
18 april 2022 om 12:45 #3934LoesE
DeelnemerWelke kamer in het Buitengasthuis is dit?
Ik kwam ‘m twee maal tegen: 1831 – nummer 341 en 359 – vrouwen van 43 en 44 jaar, stervende ingekomen.
18 april 2022 om 15:18 #3935willvlas
ModeratorHet zou Politie Kamer kunnen zijn.
Bron:
Het pesthuis na den brand (1732 tot ongeveer 1839) van 7 januari 1929
Hellinga, G.
Ned Tijdschr Geneeskd. 1929;73:35-27-
Deze reactie is gewijzigd 4 jaren geleden door
willvlas.
18 april 2022 om 18:29 #3937willvlas
ModeratorVoor alle duidelijkheid: de genoemde dames waren geen publieke vrouwen, maar respectievelijk werkster en naaister.
De politie verleende eerste hulp op straat en vervoerde patiënten met brancards o.d. naar het gasthuis. Als ze al stervende waren werden ze opgenomen in de eerste-hulp ruimte.
18 april 2022 om 22:41 #3938Macy
DeelnemerJacoba Velder en Elisabeth Splinter, vermeld in het jaar 1831, instelling: Buitengasthuis, zoals vermeld op Afdeling: Vrouwen Zieken, vergeleken met: Indexen, archiefnummer 5268, inventarisnummer 2437, periode 1831,} https://archief.amsterdam/archief/5268/2437
Jacoba Velder, geboren te Amsterdam,} https://archief.amsterdam/indexen/deeds/a6a3a284-da6a-410e-864c-4368443b720c
Elisabeth Splinter, geboren te Amsterdam,} https://archief.amsterdam/indexen/deeds/006640a9-ca22-404e-b375-1c8dd395185518 april 2022 om 23:10 #3939willvlas
ModeratorBij het opmaken van het Proces Verbaal in het Buitengasthuis betreffende het overlijden van Elisabeth Splinter is er van alles mis gegaan. Dat is later op de overlijdensakte gecorrigeerd.
https://archief.amsterdam/inventarissen/scans/5009/4.3.3.89/start/80/limit/10/highlight/9
18 april 2022 om 23:28 #3940Macy
DeelnemerDat is goed nieuws, reeds gevonden! Splinter/Splinterink.
Volledigheidshalve nog het volgende. Bij de eenjarige index overlijdensaktes vond ik geen achternaam Splinter in het jaar 1831, ook niet bij het jaar 1832. / Inderdaad, wel gevonden bij de achternaam Splinterink, Elisabeth Catharina, overlijdensaktedatum 30 december 1831, deelnr.9, folionr.87.}
Dat is dus inderdaad dezelfde als} Splinter, Elisabeth, vermeld in het jaar 1831. //
Betreft achternaam Velder, voornaam Jacoba, beroep: bleekster, leeftijd 43 jaren, gehuwd met Jan Timmer; overlijdensaktedatum 19 december 1831, deelnr.10, folionr.59verso. } Akte scanp.62/99,
=} https://archief.amsterdam/inventarissen/scans/5009/4.3.3.90/start/60/limit/10/highlight/218 april 2022 om 23:58 #3941Macy
DeelnemerZodat e.e.a. later vergeleken kan worden over het Buitengasthuis, Pol: Kamer.
Hieronder nog de links, betreft het Buitengasthuis in Amsterdam.
Vraag betreft nr.341.} Velder, Jacoba, 43 jaar, gehuwd, zie scanp.37/42, https://archief.amsterdam/inventarissen/scans/5268/1.2.5.2.1.11/start/30/limit/10/highlight/7
Vraag betreft nr.359.} Splinter, Elisabeth, 44 jaar, ongehuwd, zie scanp.38/42, https://archief.amsterdam/inventarissen/scans/5268/1.2.5.2.1.11/start/30/limit/10/highlight/819 april 2022 om 19:47 #3942LoesE
DeelnemerBen nu bezig met overlijden Buitengasthuis 1850.
Kennelijk heeft men daar een ander plan voor de zaalnummers bedacht ….
(eerste bladzijde https://archief.amsterdam/inventarissen/scans/5268/1.2.5.2.1.30/start/0/limit/10/highlight/9)
19 april 2022 om 21:53 #3943willvlas
ModeratorDe afdelingen zijn verspreid over verschillende zalen.
Mannen Zieken: S R F D P C
Vrouwen Zieken: U T P Q B C
Mannen Verband: D
Vrouwen Verband: N P
Mannen Syphil: D S K(lein)H(uisje) R
Vrouwen Syphil: T
Mannen Krankz: MKr
Vrouwen Krankz: KZnEen indicatie van de locaties geven deze plattegronden (van onbekende datum)
Begane grond
Zolderverdieping
19 april 2022 om 22:15 #3944LoesE
DeelnemerVeel dank weer, ook Macy!
-
Deze reactie is gewijzigd 4 jaren geleden door
-
AuteurBerichten
- Je moet ingelogd zijn om een antwoord op dit onderwerp te kunnen geven.



